- A+
autoCAD可以制作出赏心悦目的首饰品,现在就介绍珍珠项链的画法。
1.打开CAD,新建珍珠图层
LA(图层)——点新建——鼠标左键双击图层名称改为珍珠——颜色改为白色——再点置为当前
2.将视图转成前视
点前视图标
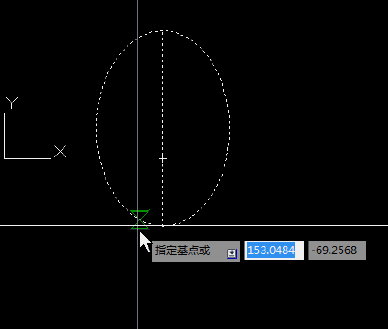
3.画长轴为220mm,短轴为150mm的椭圆
EL(椭圆)——空格——用鼠标左键在点一下,再横向拉——输入150——再纵向拉——输入110——空格
4.沿椭圆的纵向象限点画条直线
L(直线)——空格——点椭圆的纵向两象限点——空格
将些椭圆与直线复制两份
选中椭圆与直线——CO(复制)——空格——以直线端点为基点——在空间里再点击一下——移动再点击一下
5.以直线的一端点为球心,画直径为12mm的球
绘图——建模——球——点直线一端点——D(直径)——12——空格
6.将小球沿圆阵列
选中小球——AR(阵列)——空格——PA(路径)——选中椭圆——空格——数量——46
将阵列后的球分解(阵列后是一个组合的)
选中球——X(分解)——空格
7.将视图转成左视——西南等测视图
先点左视——再点西南等测视图
以直线的一端点为圆心,画直径为0.2mm的圆
C(圆)——空格——点直线的一端点——D(直径)——0.2——空格
以另直线的一端点为圆心,画直径为0.5mm的圆
C(圆)——空格——点直线的一端点——D(直径)——0.5——空格
8.将小圆沿椭圆扫掠
选中0.2mm圆——SWEEP(扫掠)——空格——扫掠路径:点击椭圆——空格——选中0.5mm圆——空格——扫掠路径:点击椭圆——空格
再将视觉样式转成概念
SHA(视觉样式)——空格——C(概念)——空格
CAD软件教程:http://she.itk3.com/cad-edu
9.将这0.5mm粗线移到46个小球的中点
选中小粗线与它的中间直线——M(移动)——粗线中的直线的中心为基点——移动球的直线中点上
10.将46个球减去这条粗线,从而让每个小球都有一个0.5mm大的小孔
SU(差集)——空格——框选整个小球范围,再按住Shift键点粗线——空格——再选粗线——空格
11.将0.2mm细线移到46个小球的中点
选中小细线与它的中间直线——M(移动)——细线中的直线的中心为基点——移动球的直线中点上
12.选中直线——E(删除)——空格,直线删除了
3DO(三维动态观察)——空格,珍珠模型就画好了
历史上的今天:
- 2022: CAD如何对齐标注的教程?
- 2022: 钢筋等级的这几个符号你会直接输入吗?
- 2022: sjqy钢筋符号字体怎么安装?
- 2022: SolidWorks三维模型怎么渲染?
- 2022: eplan怎么导入宏文件?部件库


